好好干,把钱赚,3款带车库的农村别墅,挑一栋回家建
好好干,把钱赚,3款带车库的农村别墅,挑一栋回家建
带车库-别墅1

(由山西省丹凤县杨总私人定制而来)
品牌:建房说
1、别墅图纸编号:JF21765
2、主体毛坯参考造价:37-47万
3、占地面积:144.72平方米
4、建筑面积:362.85平方米
5、开间12.24米,进深11.08米
6、砖混结构,建筑高12.7米




带车库-别墅2

(由陕西省安康市沈总私人定制而来)
品牌:建房说
1、别墅图纸编号:JF20176
2、主体毛坯参考造价:50-60万
3、占地面积:191.9平方米
4、建筑面积:493.1平方米
5、开间18.04米,进深10.24米
6、框架结构,建筑高13.4米





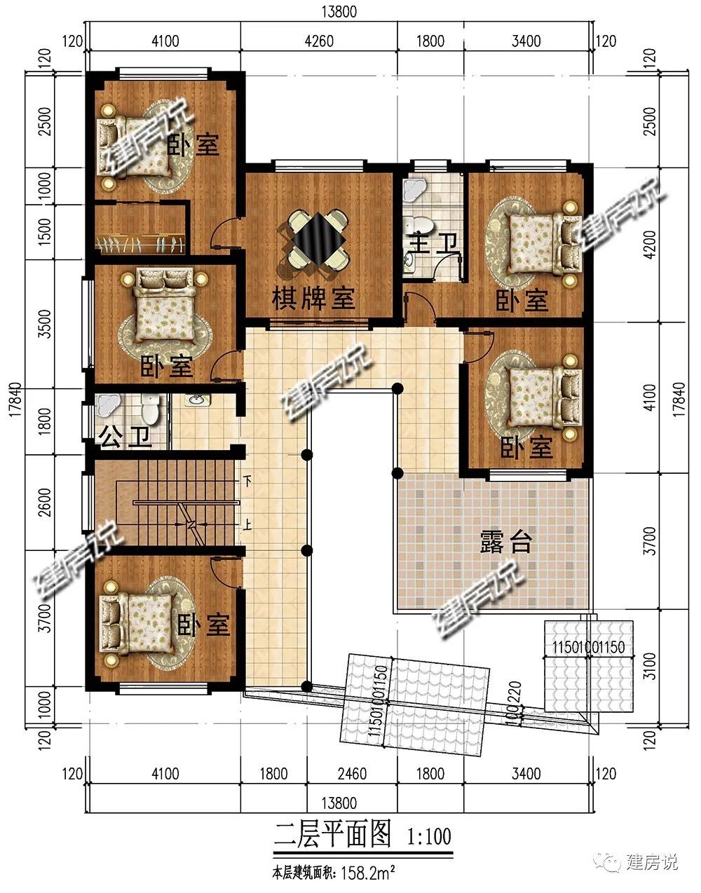
带车库-别墅3

(由四川省隆昌市余总私人定制而来)
品牌:建房说
1、别墅图纸编号:JF20391
2、主体毛坯参考造价:39-49万
3、占地面积:213.5平方米
4、建筑面积:383.7平方米
5、开间13.8米,进深17.84米
6、框架结构,建筑高9.6米




-
- 发型为颜值加分!李易峰杨洋这些时尚范发型你敢尝试吗?
-
2025-10-02 18:07:12
-
- 2024龙年将是个什么年?
-
2025-10-02 18:04:58
-
- 2022六一儿童节主题绘画26幅来袭!提前收藏备用哦
-
2025-10-02 18:02:43
-
- 2014-15赛季球员评估:迪昂-维特斯
-
2025-10-02 18:00:30
-
- 云南大理州的这个县,被称为“天然温室”,目前还未通铁路
-
2025-10-02 17:58:15
-
- 兄弟向耽美文推荐:我家弟弟有点不对劲,老抱我蹭我这是缺钙了吗
-
2025-10-02 17:56:01
-
- 西施的传奇人生:美貌与智慧的完美结合
-
2025-10-02 17:53:47
-
- 四娃非亲生事件:余霞与吴某的新生活轨迹揭晓
-
2025-10-02 17:51:33
-
- 满满的全是套路表情包 适合哪个用哪个?
-
2025-10-02 17:49:18
-
- 快抢!小掌送暖心喜剧《我的冤家是条狗》电影票啦
-
2025-10-02 17:47:04
-
- 今天,你吃了吗?
-
2025-10-02 17:44:50
-
- 2020中国31所副部级大学排名,北大第1,天大武大并列第10
-
2025-10-02 10:38:32
-
- 26个字母壁纸#高清无水印#酷的你不来个吗?
-
2025-10-02 10:36:18
-
- 15岁的陈智强不仅拿了最强大脑的脑王,还狠狠抽了郭敬明一巴掌
-
2025-10-02 10:34:04
-
- 12张罕见的搞笑图片,笑到肚子疼
-
2025-10-02 10:31:50
-
- “泰伯奔吴”原因:被史书隐藏的太深,难怪帝乙会传位纣王
-
2025-10-02 10:29:36
-
- 《白鱼解字》:土地神为啥叫社神?祠届里为什么要供奉社神夫妻?
-
2025-10-02 10:27:21
-
- 《白鱼解字》:土地神为啥叫社神?祠届里为什么要供奉社神夫妻?
-
2025-10-02 10:25:07
-
- 自制卤鸡蛋的做法,简单易学零失败,好吃又入味
-
2025-10-02 10:22:53
-
- 镇江这里临时交通管制,公交线路有调整!
-
2025-10-02 10:20:38



22年林立衡丈夫张清林病逝,终年80岁,副总理陶铸之女送去了花圈
每斤20元起步,今春农贸市场的小龙虾“抢鲜价”也亲民