嘉兴花语江南中式合院什么价格 嘉兴花语江南二手房价最新消息
嘉兴花语江南中式合院什么价格 嘉兴花语江南二手房价最新消息

烟雨飘摇了千百年
才洗出这么一个江南
诗词吟诵了千百年
才唱出这么一个江南

曾经,心中的江南是一个遥远如梦似幻的神话。


那年,那月,那时光,在悄然流逝中斑驳成古巷的块块青幽石板,缝隙中苔嫩珠滑,柔情百转。山间云雾氤氲,白絮缭绕。心中的江南也是一个梦,一个不愿醒来的梦。


“小楼昨夜听风雨,小巷明朝卖杏花。”印象中的江南烟雨濛濛,飞花若梦,生活亦应如梦。


邱德光新作位于西南湖之畔的花语江南,卧居老城南核心,此处有花语,别处无江南。嘉兴给人的印象是步伐慢调、温柔可亲的城市。历史记载曾是文章锦绣地、温柔富贵乡、丝绸汇集市。本案的设计理念即是秉承对江南,以及嘉兴文化的理解与尊重,重现了烟雨江南,花语庭园住宅,复现风雅的东方美学生活意境。
公共空间
“在保证功能完整性的前提下,我们将各功能区有机串联在一起。将大部分面积设计为公共与半公共空间。”邱德光说。崇尚交流与互动,为室主人营造多种生活的可能性是这个空间的精髓。

白墙粉黛的水墨江南、柳叶飘雨的古城嘉兴,被设计师巧妙的搬入到居室之中。



高级灰、大地色是邱德光赋予花语江南的基础色彩,用素净优雅来诠释东方美学是设计师想要呈现出来的效果,相较于沉稳的中式,这种手法似乎更符合嘉兴人的气质。


一层客餐厅地坪拼花设计概念源自青石板路;整体空间灰、白色调源自白墙黛瓦;而软装的黄、蓝色调点睛之作则来自江南的春天色彩,记忆中的江南蓝花布,将江南水乡自然、人文之美带进居室生活中。


郑板桥曾说:“室雅无须大,花香不在多”,恰能形容本案的客餐厅——意境的营造结合园林,将自然、山川放入自家庭院,日日把玩,何其幸福!
会客厅
在嘉兴,下雨仿佛是一种日常。这种自然意象也被演绎于地下空间里,垂落而下的玻璃灯像雨滴般编织梦幻的花语江南,丝丝溶入地毯的江河之中,带来梦幻与诗意,使人仿佛游走在江南的烟雨中,时间被静止,舒服又惬意。

水滴灯营造的江南烟雨意象

设计充分利用地下空间超高的挑空,塑造出优越、仪式性的生活空间效果,配以典雅的材质及高耸的书架让人眼前一亮,地下空间完全的开放与融合,为室主人营造出一个灵动,丰富有趣的生活场景。




就地下生活空间而言,设计不只是关注会客的基本功能,更把目光投向未来室主人的生活方式。将主要空间留给社交形生活方式设计的会客厅,会客厅又巧妙地将吧台区与书房品茗区串联。
书房品茗区



会客厅巧妙地连结吧台区与书房品茗区,每个空间看似独立却又相互串联。这是设计师的“刻意为之”:“中西生活方式合并,看似彼此矛盾,却也产生恰到好处的融合之美。独立使用的时候可以保证功能分区,但当他们合并在一起,生活也就有了重叠。”
夹层工作室


设计师利用高度的优势做了夹层工作室,概念源自嘉兴曾盛行一时的丝绸纺织时代,致敬经典,设计师引入时代变迁的痕迹与现代时尚元素,既可做工作室又可做为作品陈列展示区,既现代又怀旧。
私密空间
生活空间需要有业主自己的生活气质,而设计师要做的,就是帮他们把天马行空的想法、喜好、个性化需求整理出来。在邱德光看来,最好的设计是最贴近于生活的。
长辈间


长辈房连接室外庭院,空间通透明亮,饰以端庄稳健的大地色,诠释出悠然闲适,平静的生活态度。“落日庭院中,春风啜茗时。”在静逸雅致的庭院中平和身心,品位生活中的闲适情趣。
主卧室



二层主卧室与浴室则是室主人温柔的体现。设计师将”花语”意境元素带入设计中,在拉门门片及浴室灰镜中加入枝丫和花鸟图腾。壁纸配以柔和稳重、不事张扬的“高级灰”,仿佛可以看见居者身上所散发出的柔和低调、优雅的江南气质。


烟雨、诗词,这是记忆中的江南;白墙、黛瓦、青石板路,印象中的江南;江南的清幽、宁静、典雅、婉约,岁月的底蕴、文化的熏陶。江南不仅是一个地域,更是一种观念,一种现代人趋之若鹜的生活方式。

嘉兴 · 花语江南朝着邱德光先生致力于打造“当代中国人的居室梦想”的理念中前进,将中式风格与现代东方相互糅合,为业主勾勒出了⼀个有态度的生活美学之家。
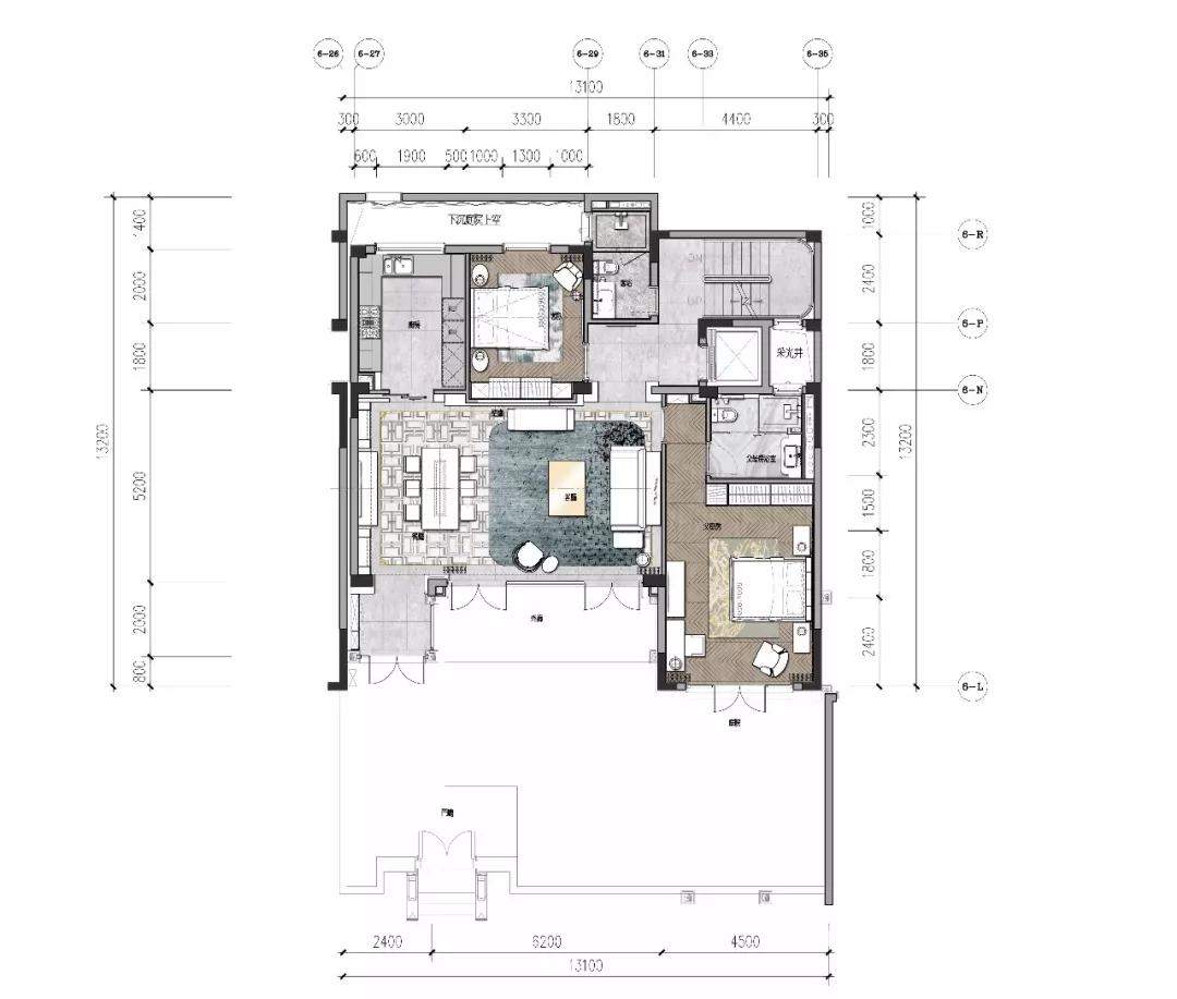
1F平面图

2F平面图

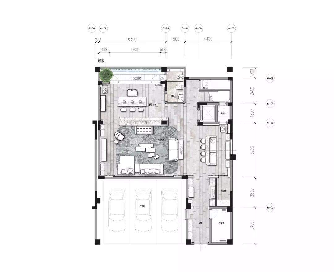
地下室平面图

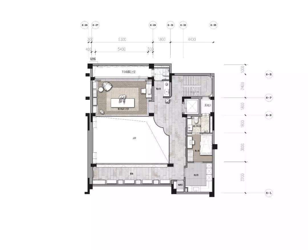
夹层平面图

项目名称:嘉兴花语江南北区合院项目
设计事务所:邱德光设计事务所
主创人员:邱德光、江晋栩、陈惠君
设计团队:庄媛婷、林唯欣、林佩玲 、江鎷如、 姚道元
项目管理:朱晓东、夏梦
主要用材: 木皮、烤漆板、镀钛不锈钢、石材
家具主要品牌: T.K HOME
设计时间:2017年7~9月
完工时间:2018年7月
项目地点:浙江省嘉兴市
摄影:ingallery 金啸文
-
- 《别云间》大结局怎么样?值得观看吗?
-
2026-01-29 01:58:51
-
- 董鄂妃,顺治一生中最喜欢的女人
-
2026-01-29 01:56:37
-
- 镜子如何擦干净不留痕迹,镜子怎么清洗干净没有水印
-
2026-01-29 01:54:23
-
- 我国最美的六个溶洞,不仅漂亮,还都是5A级景区,你去过几个呢?
-
2026-01-28 01:01:41
-
- 东方明珠多高,东方明珠电视塔高度?
-
2026-01-28 00:59:27
-
- 可燃固体火灾应用什么灭火器灭火,可燃固体火灾应用什么灭火器灭火?
-
2026-01-28 00:57:12
-
- rx560功耗 精影(rx560功耗是45还是75w)
-
2026-01-28 00:54:59
-
- arm架构科普(为什么连高通都离不开)
-
2026-01-28 00:52:44
-
- 最朴实走心的表白(暖心情话大全,最朴实走心的表白情话)
-
2026-01-28 00:50:29
-
- ipad7(2019款ipad是第几代)
-
2026-01-28 00:48:15
-
- 「海北州志」第二期:门源县概况介绍
-
2026-01-27 22:26:07
-
- 推言情甜文:喜欢微微甜、重生之娇后、在他心尖撒娇
-
2026-01-27 22:23:52
-
- 速冻汤圆冷水煮还是热水煮?速冻汤圆保质期多久
-
2026-01-27 22:21:38
-
- 人人都要吃饭 日常生活中吃饭的禁忌你又知多少
-
2026-01-27 22:19:24
-
- 柠檬蜂蜜水的功效 喝柠檬蜂蜜水的8大禁忌
-
2026-01-27 22:17:09
-
- 光的速度有多快(光的速度有多快一秒多少千米)
-
2026-01-27 22:14:56
-
- 北京十大酒吧推荐
-
2026-01-27 22:12:42
-
- 34岁的女人生文案抖音(34岁文案怎么写)
-
2026-01-27 22:10:26
-
- 胃不好的人在饮食上要注意什么呢?胃不好的人应该吃哪些食物?
-
2026-01-27 22:08:13
-
- 烧开的开水能不能烧第二次,烧过的水可以烧第二次吗
-
2026-01-27 22:05:58



火车卧铺几点关灯,火车卧铺晚上几点关灯的?
日本男演员排名(日本男演员2025)